












Office building - Domenii, Parcul Copilului
Bucuresti, Domenii
4.300.000€ + TVA
Suprafata utila
3084 mp
Suprafata construita
3200 mp
An constructie
1980
- ID:P866
- S. utila:3084.00 mp
- S. construita:3200.00 mp
- S. teren:1550.00 mp
- Nr. parcari:25
- Front stradal:80.00 m
- Nr. fronturi:1
- An constructie:1980
- An renovare:2003
- Structura rezistenta:Beton
- Regim inaltime:S+P+1+M
Descriere
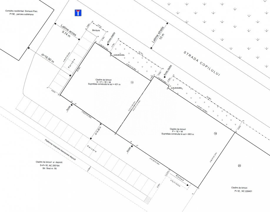
Va oferim spre vanzare o cladire de birouri, situata pe strada Copilului, nr 16-18, cu vedere catre Parcul Copilului si cu acces la statia metrou Grozavesti (700m - 10 minute de mers pe jos).
Proprietatea disponibile pentru vanzare este compus din doua imobile conectate intre ele, construite original in perioada anilor 80 si restaurate complet in 2003.
Cladirile sunt compuse din S (partial) +P+1E+M
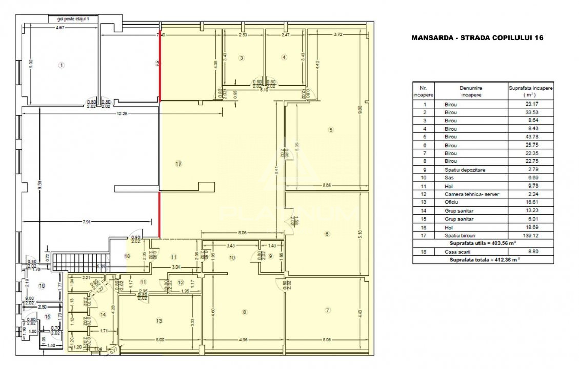
Mansarda (etaj 2 ) a fost construit in 2003.
Amprenta la sol: 1094 mp
Suprafata utila imobil: 3084 mp
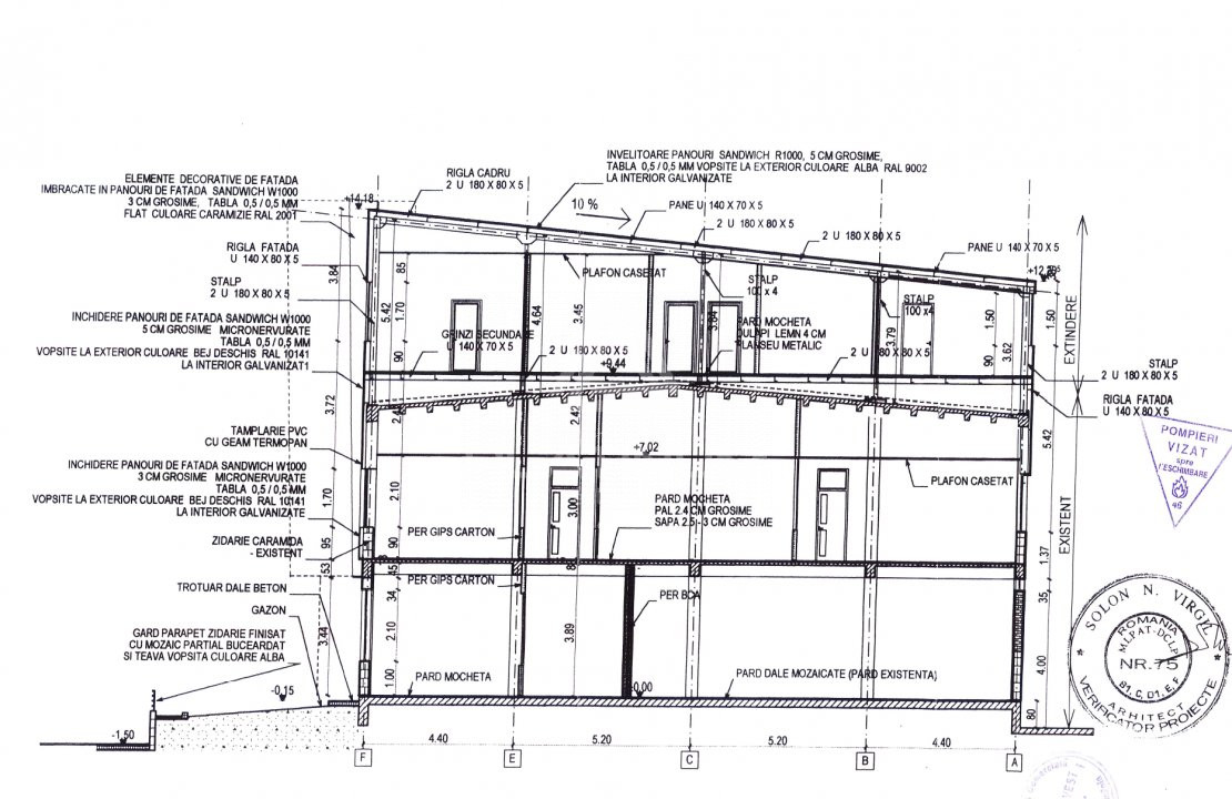
Hparter (din placa in placa) = 3.89 cm
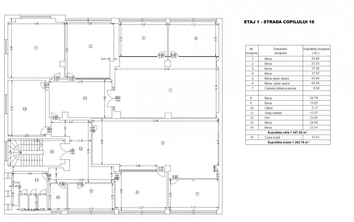
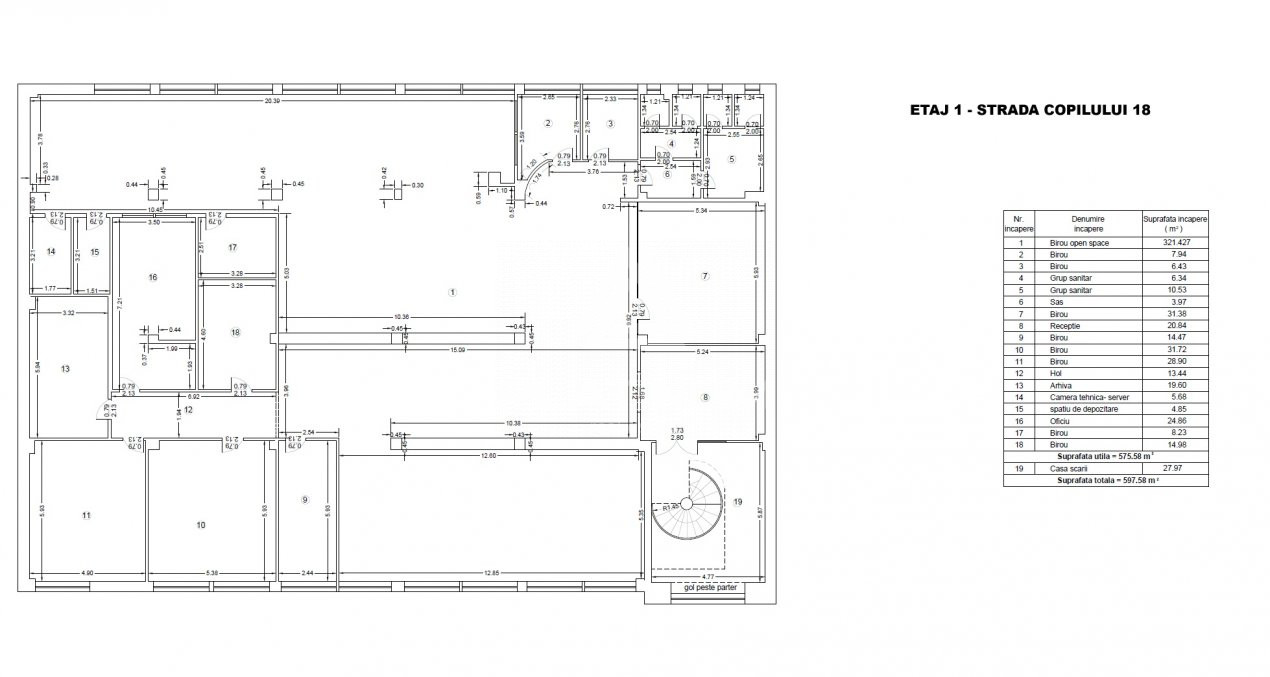
H etaj 1 = 5m
H mansarda = 2.4 m- 4.2 m
Suprafete imobile:
Subsol: 37.09 mp
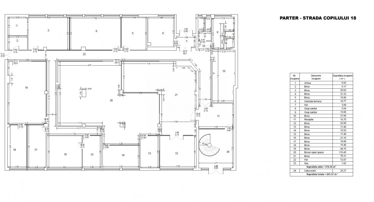
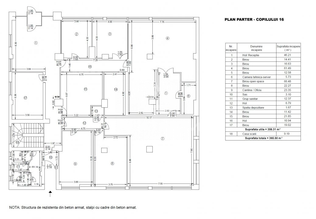
Parter: 967.07 mp
Etaj 1: 981. 34 mp
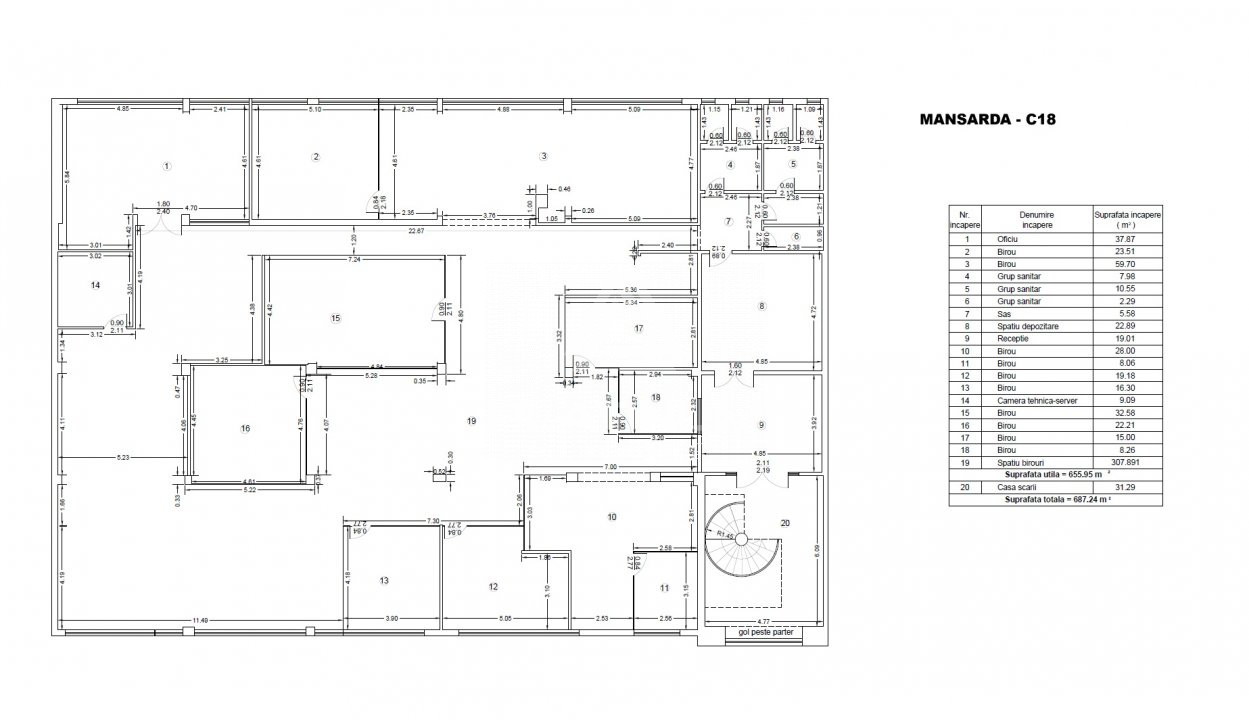
Mansarda: 1099 mp
25 locuri de parcare in exterior .
In momentul de fata cladirea este inchiriata integral (10 chiriasi) Si produce : 275.000 euro/ an
Service charge: 2.85 euro/mp
Citeste mai mult
Proprietatea disponibile pentru vanzare este compus din doua imobile conectate intre ele, construite original in perioada anilor 80 si restaurate complet in 2003.
Cladirile sunt compuse din S (partial) +P+1E+M
Mansarda (etaj 2 ) a fost construit in 2003.
Amprenta la sol: 1094 mp
Suprafata utila imobil: 3084 mp
Hparter (din placa in placa) = 3.89 cm
H etaj 1 = 5m
H mansarda = 2.4 m- 4.2 m
Suprafete imobile:
Subsol: 37.09 mp
Parter: 967.07 mp
Etaj 1: 981. 34 mp
Mansarda: 1099 mp
25 locuri de parcare in exterior .
In momentul de fata cladirea este inchiriata integral (10 chiriasi) Si produce : 275.000 euro/ an
Service charge: 2.85 euro/mp
Specificatii
Curent
Apa
Canalizare
Gaz
Centrala proprie
Aer conditionat
Vopsea lavabila
Raluca Nicolae
0757057878
Esti interesat de aceasta proprietate ?