










Aceasta proprietate a fost deja vanduta! Pentru oferte similare contactati agentul
Vila renovata 2023, Zona Piata Dorobanti
Bucuresti, P-ta Dorobanti
7.500€
Camere
10
Suprafata utila
353 mp
Suprafata construita
457 mp
Bai
5
An constructie
1940
- ID:P587
- Nr. camere:10
- S. utila:353.00 mp
- S. construita:457.00 mp
- S. teren:354.00 mp
- Nr. bucatarii:1
- Nr. bai:5
- Nr. parcari:2
- Front stradal:13.00 m
- Nr. fronturi:1
- An constructie:1940
- An renovare:2023
- Structura rezistenta:Beton
- Regim inaltime:D+P+1+M
- Orientare:Sud-Est
- Clasa energetica:A
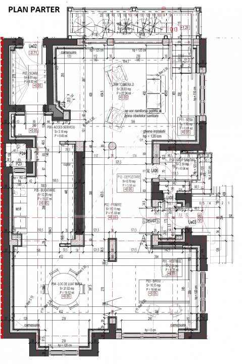
Descriere
Va oferim spre inchiriere o vila situata in Cartierul Dorobanti, pe strada Intr. Bitolia.
VIla a fost renovata integral interior/ exterior si a fost finalizata in iunie 2023.
Amprenta la sol este de 145 mp dintr-o suprafata totala a terenului de 352 mp.
Cei 350 mp utili sunt distribuiti pe demisol, parter, etaj si mansarda;
+ 30 mp pod
In incinta proprietatii se pot parca doua masini.
Monitorizare video.
SPECIFICATII TEHNICE:
- Acoperis LIndab
- tamplarie aluminiu Marca Reyners,
- incalzire in pardoseala
- centrala proprie, Marca Buderus
- ventiloconvectoare, Marca Daikin
Citeste mai mult
VIla a fost renovata integral interior/ exterior si a fost finalizata in iunie 2023.
Amprenta la sol este de 145 mp dintr-o suprafata totala a terenului de 352 mp.
Cei 350 mp utili sunt distribuiti pe demisol, parter, etaj si mansarda;
+ 30 mp pod
In incinta proprietatii se pot parca doua masini.
Monitorizare video.
SPECIFICATII TEHNICE:
- Acoperis LIndab
- tamplarie aluminiu Marca Reyners,
- incalzire in pardoseala
- centrala proprie, Marca Buderus
- ventiloconvectoare, Marca Daikin
Specificatii
Curent
Apa
Canalizare
Gaz
Centrala proprie
Aer conditionat
Izolatie Exterior
Vopsea lavabila
Parchet
Marmura
Ferestre Lemn
Usa intrare Metal
Usa interior Lemn
Raluca Nicolae
0757057878
Esti interesat de aceasta proprietate ?