














Vânzare apartament 3 camere Primăverii
Bucuresti, Primaverii
630.000€
Camere
3
Suprafata utila
95.20 mp
Etaj
Etaj 3
Bai
2
Parcari
1
An constructie
2016
- ID:P946
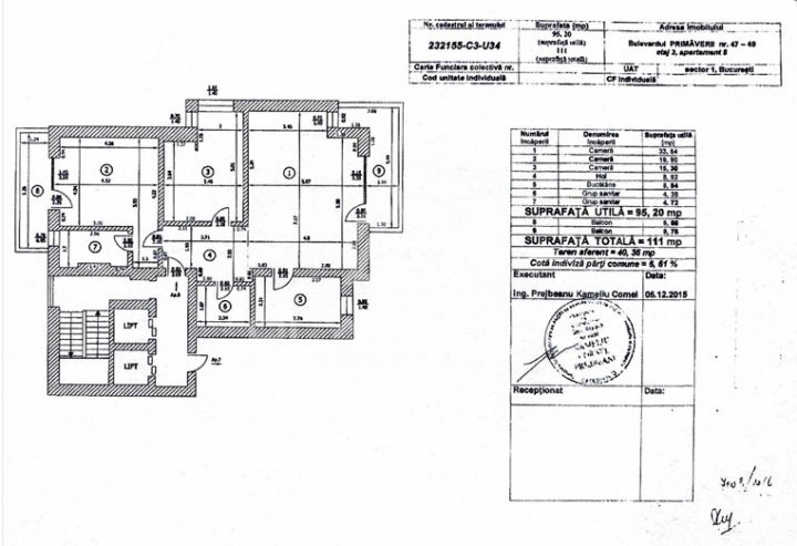
- Nr. camere:3
- S. utila:95.20 mp
- S. balcoane:15.80 mp
- S. utila totala:111.00 mp
- Comp.:Decomandat
- Confort:1
- Etaj:Etaj 3
- Nr. bucatarii:1
- Nr. bai:2
- Nr. balcoane:2
- Nr. parcari:1
- An constructie:2016
- Structura:Beton
- Tip imobil:Bloc
- Regim inaltime:S+P
Descriere
Apartament spațios de 3 camere, situat la etajul 3 al unui imobil modern, ideal pentru cei care caută confort și funcționalitate într-o zonă exclusivistă.
Locuința are o suprafață utilă de 95,20 mp, la care se adaugă două balcoane generoase în suprafață totală de 15,80 mp, oferind spații perfecte pentru relaxare. Compartimentarea este eficient gândită, incluzând un living luminos, două dormitoare și două băi.
Dormitorul matrimonial beneficiază de baie proprie, asigurând intimitate și confort, în timp ce al doilea dormitor are acces la cea de-a doua baie, care deservește și zona de zi. Spațiile sunt bine proporționate, cu lumină naturală din abundență și finisaje de calitate.
Proprietatea include în preț un loc de parcare în subteran, un avantaj important pentru confortul zilnic.
Un apartament ideal pentru rezidență sau investiție, într-un cadru liniștit și bine conectat.
Citeste mai mult
Locuința are o suprafață utilă de 95,20 mp, la care se adaugă două balcoane generoase în suprafață totală de 15,80 mp, oferind spații perfecte pentru relaxare. Compartimentarea este eficient gândită, incluzând un living luminos, două dormitoare și două băi.
Dormitorul matrimonial beneficiază de baie proprie, asigurând intimitate și confort, în timp ce al doilea dormitor are acces la cea de-a doua baie, care deservește și zona de zi. Spațiile sunt bine proporționate, cu lumină naturală din abundență și finisaje de calitate.
Proprietatea include în preț un loc de parcare în subteran, un avantaj important pentru confortul zilnic.
Un apartament ideal pentru rezidență sau investiție, într-un cadru liniștit și bine conectat.
Specificatii
Curent
Apa
Canalizare
CATV
Telefon
Acces internet
Fibra optica
Centrala imobil
Ventiloconvectoare
Izolatie Exterior
Parchet
Ferestre Aluminiu
Usa intrare Metal
Usa interior Lemn
Wc serviciu
Bucatarie Mobilata
Complet mobilat
Interfon
Videointerfon
Lift
Andreea Petcu
0720746318
Esti interesat de aceasta proprietate ?